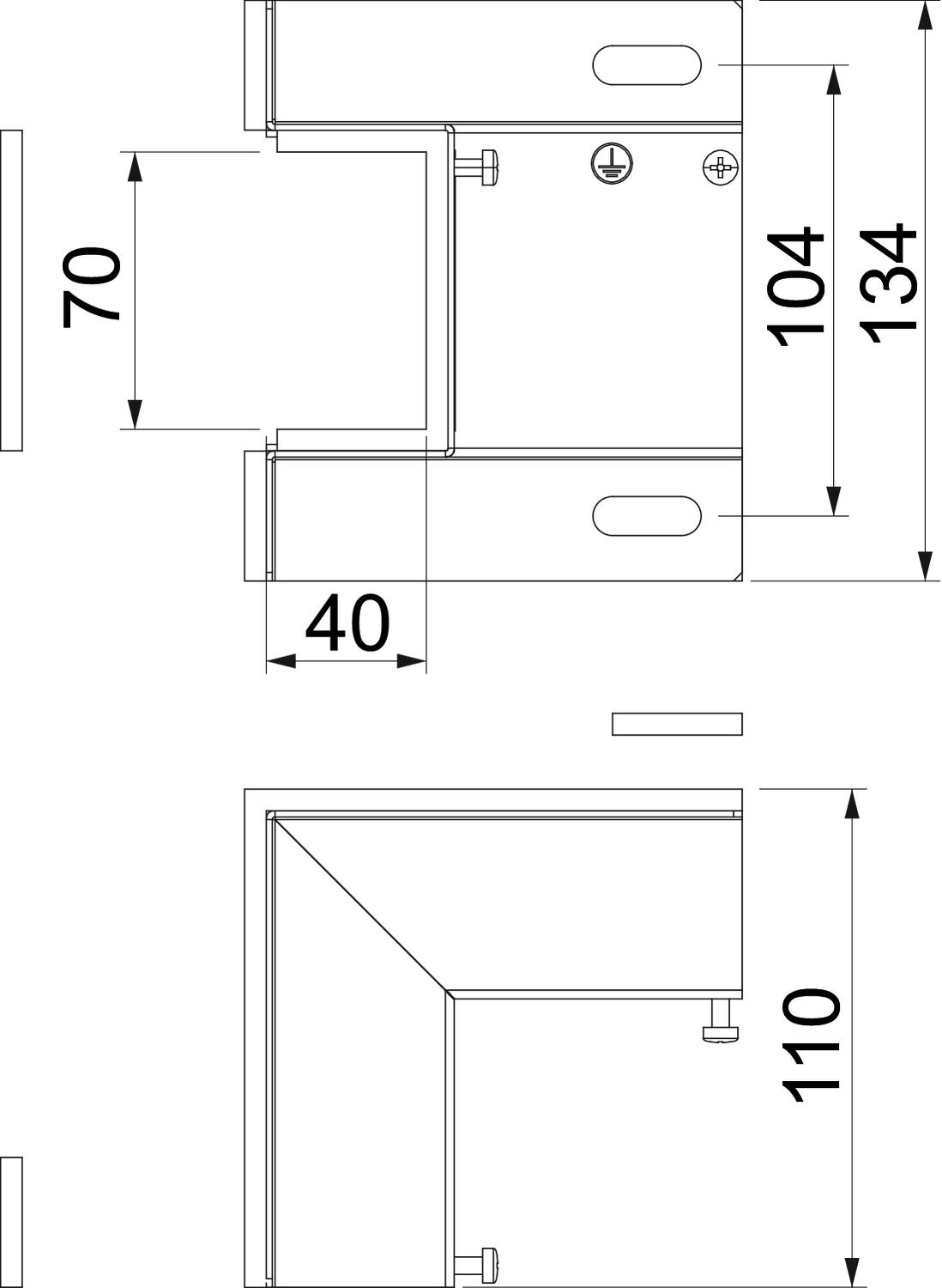
Formteil-Haube zur Abdeckung von zwei Kanalenden BSKM 0407 als Inneneck bei direkter Wand- und Deckenmontage. Inklusive eingeklebter Dichtungen zum Abdichten der Fugen und losen Dichtungen bei Kombination mit Gegenplatte, sowie Schrauben für den Potentialausgleich.
Hersteller-Artikelnummer (MPN)
7216528
Oberflächenschutz
bandverzinkt
Innenbreite
70 mm
Deckelbefestigung
sonstige
Feuerwiderstandsklasse I - Installationskanal
120
Farbe
zink
Außenbreite
134 mm
Außenhöhe
110 mm
Innenhöhe
40 mm
Hersteller: OBO OBO Bettermann Vertrieb Deutschland GmbH & Co. KG Hüingser Ring 52 DE 58710 Menden info@obo.de Webseite: www.obo.de