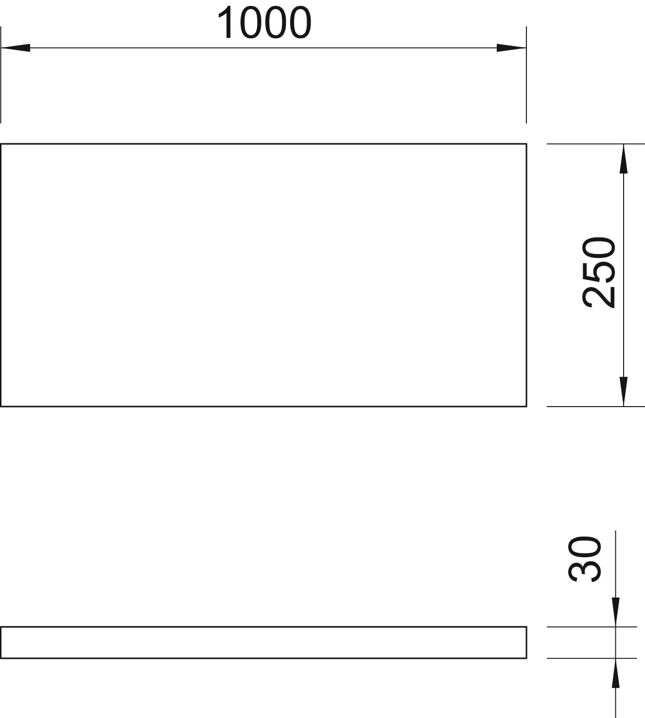
Kalziumsilikatplatte, als Auflageunterstützung, zum Bau von Rahmen im Durchbruch und zum Aufdoppeln bei geringen Wandstärken. Baustoffklasse EN 13501 - A1 nicht brennbar.
Hersteller-Artikelnummer (MPN)
7202912
Art des Zubehörs/Ersatzteils
Kalziumsilikatplatte
Hersteller: OBO OBO Bettermann Vertrieb Deutschland GmbH & Co. KG Hüingser Ring 52 DE 58710 Menden info@obo.de Webseite: www.obo.de