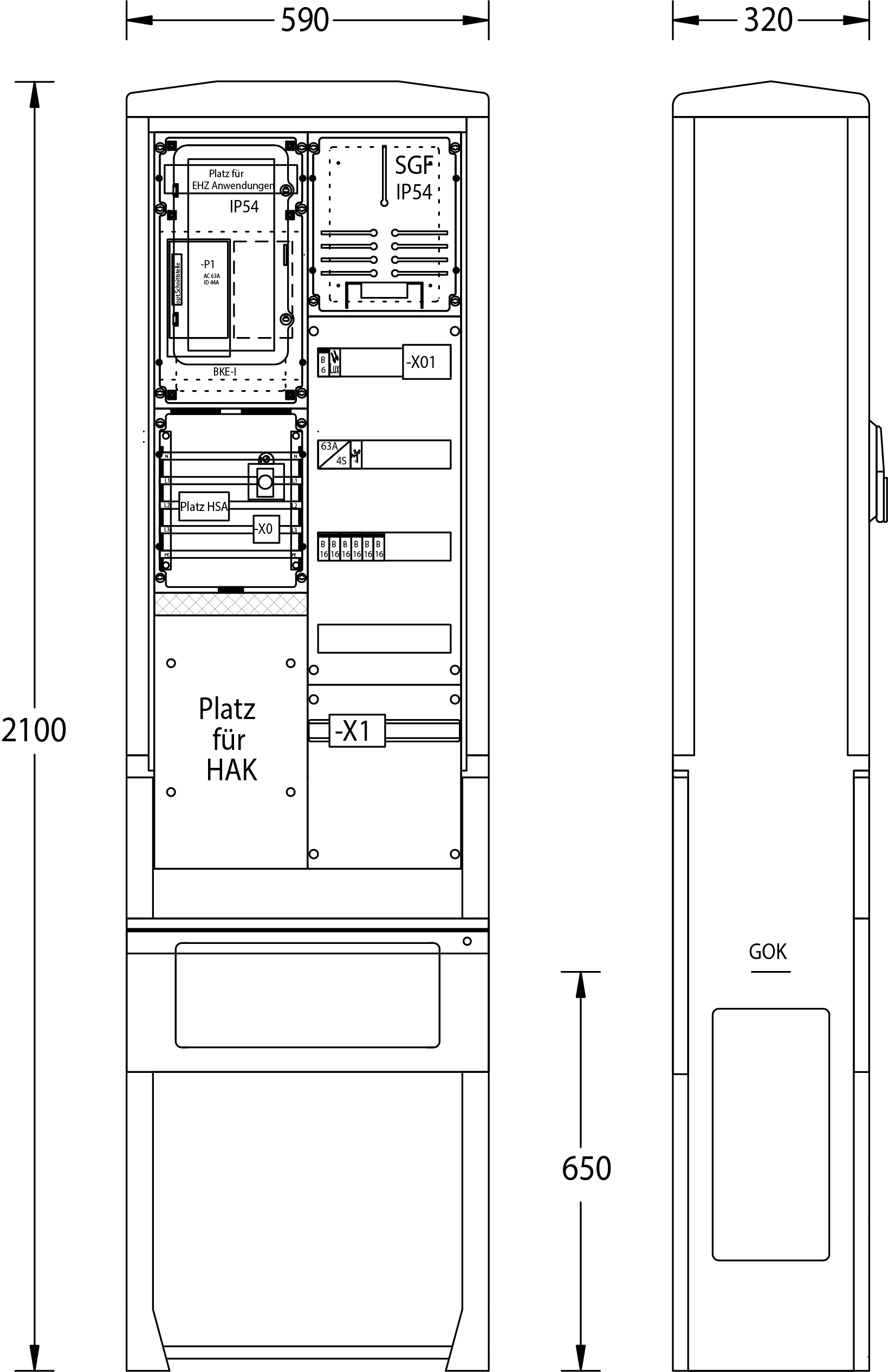
Zähleranschlusssäule ZAS-S-2-SGF Westnetz 2131-0623.45, - Säule Größe 0 / A070-2100, - Schutzart IP44 / Schutzklasse II, - mit Doppelschließung für Profilhalbzylinder 40 oder 45 mm, - 1 Platz für Hausanschlusskasten NH00, - 2 eHZ-Zählerplätze nach DIN 43870 450x250mm IP54 mit Klappfenster, - 2 integrierte Kontaktiereinheiten (BKE-I), - 1 TSG-Platz IP54 nach DIN 43 870, - 1 Steuersicherung D01/1 pol. 10 A und Steuerklemme für TSG mit Plombierhaube, - 2 Plätze für Hauptsicherungsautomaten auf SS-System 5 pol./12x5 mm Cu., - 2 Abgänge mit Hauptleiterabzweigklemme 1,5-25 mm² 5 pol.
Hersteller-Artikelnummer (MPN)
2131-0626.45
Schutzart (IP)
IP44
Mit Montageplatte
nein
Anzahl der Verteilerreihen
3
Werkstoff
Kunststoff
Montageart
Aufputz
Tiefe
320 mm
Höhe
2100 mm
Bemessungsstrom
100 A
Ausführung
1-stöckig
Anzahl der TSG-Plätze
1
Anzahl der Felder
2
Unterer Anschlussraum
mit Sammelschiene 5-polig
Breite
590 mm
Farbe
grau
Anzahl der Zählerplätze
2
RAL-Nummer
7035
Hersteller: UESA uesa GmbH Elektro- u. Schaltanlagenbau Gewerbepark-Nord 7 DE 04938 Uebigau-Wahrenbrück mail@uesa.de Webseite: www.uesa.de