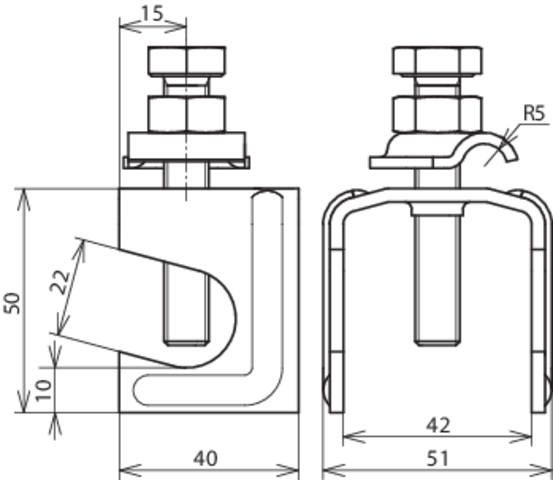
Verbindungsklemme nach DIN EN 62561-1, zum Verbinden der Bewehrung, mit Klemmbock für den flexiblen Anschluss von Rundleiter oder für Erdungsfestpunkte mit gleichzeitiger Befestigung in der Schalung. Ausführung für kleine Durchmesser.
Hersteller-Artikelnummer (MPN)
308035
Art des Verbinders
T-/Kreuz-/Parallel-Verbinder
Rundleiterdurchmesser Leiter 2
6..10 mm
Flachleiterbreite Leiter 1
40 mm
Werkstoff
Stahl
Oberflächenschutz
unbehandelt
Art der Befestigungsschrauben
Sechskantschraube
Blitzstromtragfähigkeit (10/350 µs)
50 kA
Rundleiterdurchmesser Leiter 1
6..22 mm
Hersteller: DEHN DEHN SE Hans-Dehn-Str.1 DE 92318 Neumarkt i.d.OPf. info@dehn.de Webseite: www.dehn.de